GALLERY
PROPERTY DETAIL
Key Details
Property Type Single Family Home
Sub Type Single Family Residence
Listing Status Active
Purchase Type For Sale
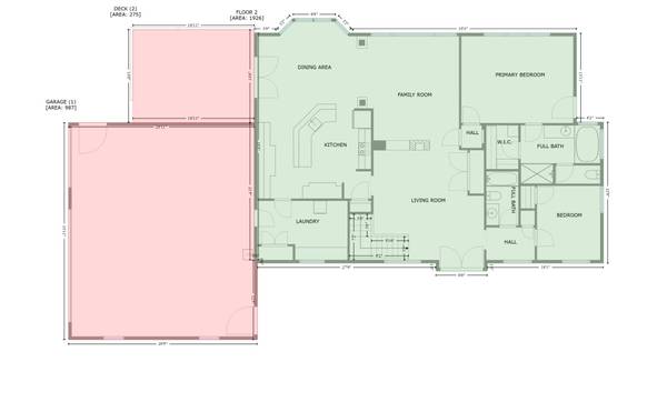
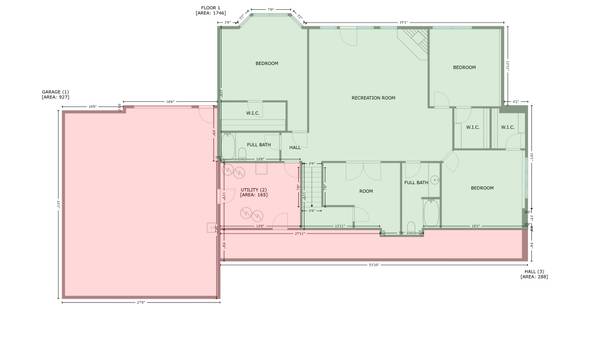
Square Footage 3, 458 sqft
Price per Sqft $213
MLS Listing ID 6742047
Bedrooms 5
Full Baths 4
Year Built 2004
Annual Tax Amount $4,450
Tax Year 2024
Contingent None
Lot Size 4.090 Acres
Acres 4.09
Lot Dimensions Irreg
Property Sub-Type Single Family Residence
Location
State MN
County Dodge
Zoning Residential-Single Family
Rooms
Basement Egress Window(s), Finished, Full, Storage Space, Sump Pump, Tile Shower, Walkout
Dining Room Eat In Kitchen, Kitchen/Dining Room, Living/Dining Room
Building
Lot Description Many Trees
Story One
Foundation 1746
Sewer Septic System Compliant - Yes
Water Private, Well
Level or Stories One
Structure Type Brick/Stone,Metal Siding
New Construction false
Interior
Heating Boiler, Forced Air, Fireplace(s)
Cooling Central Air
Fireplaces Number 2
Fireplace Yes
Appliance Air-To-Air Exchanger, Central Vacuum, Dishwasher, Dryer, Humidifier, Gas Water Heater, Microwave, Range, Refrigerator, Stainless Steel Appliances, Washer, Water Softener Owned
Exterior
Parking Features Attached Garage, Gravel, Finished Garage, Garage Door Opener, Insulated Garage, Multiple Garages, Underground
Garage Spaces 6.0
Fence None
Pool None
Roof Type Age Over 8 Years,Architectural Shingle,Asphalt,Pitched
Schools
School District Triton
SIMILAR HOMES FOR SALE
Check for similar Single Family Homes at price around $740,000 in West Concord,MN
CONTACT











